Warm a Chilly Deck With a Fireplace

2 MIN READ

Approaches to creating great looking deck by Elaine Laney

No matter how great the view, how friendly the company, or how good the food and conversation, if you’re sitting on a cold deck freezing your extremities, you’ll yearn to be indoors. Add fire, though, and you’ve got both a heat source and a social focal point, extending the deck season significantly.

If the deck is being built on a residence under construction, now’s the time to collaborate with the owner, builder, or architect on placement of an outdoor fireplace that backs up to one inside the house. If you are constructing a deck on an existing residence, however, consider some of the following options. Each plan can stand alone as a complete deck or be a part of a larger whole. •

Elaine Laney is a designer in Hendersonville, N.C.

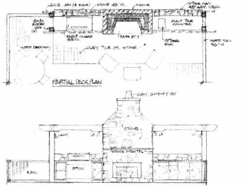
Combined Fireplace and Cooking Area

This fairly high-budget approach is great for clients who hold large parties, as it allows for cooking, eating, fire watching, and conversation. A two-member trellis on each side of the fireplace creates a semi-covered area, complete with grill, wet-bar, and storage cabinets. Built-in lighting and clay-tile counters that match the cooking-area decking refine the look.

Freestanding Fireplace

Made for cozy chats on chilly evenings, this plan offers warmth and style, with brick or stone to complement the home. A post light with hanging baskets softens the area, as would decorative items on the mantel and comfy furnishings. The 45-degree fireplace offers a large firebox without blocking the view (if there is one) from the house.

Fireplace Plus Seating

Simple and clean, this plan centers on a freestanding metal firepit, with facing seating to facilitate conversation. Built-in tables with benches softened by bright cushions make it a good place to linger, and there is plenty of room for additional chairs and seasonal planters to further liven up the area.

Register to download and view this article

Get your copy

About the Author

No recommended contents to display.

Upcoming Events