I started cutting roofs on California tract housing, and while I only work on custom houses now, I still use the production techniques I learned back then because they increase my efficiency on the job site. Here are some of the tricks I have collected for laying out and cutting simple gables, hips, and valleys. All of the examples shown in this article are figured for a roof with a 6/12 pitch. Using the tables that accompany this article you can adapt the system to other roofs.
Setup
The first step in roof cutting is to set up racks so the rafters can be gang cut. Two styles of rafter racks are shown in Figure 1. A good set of racks doesn’t need to be perfectly level, but the top edges must be parallel. You can check this by eyeballing across the tops to see if they lie in the same plane. Brace the middle of a long rack and wax the top edge with a block of paraffin to make it easier to slide the rafters around.
Stack the rafters crown down and leave about 12 inches of the rafters hanging over one rack. The second rack should be placed approximately under the birdsmouth cuts. Nail end blocks on the rack to keep the rafters together. Rafters that are low can be raised and toenailed to the adjacent rafters to keep them flush on top, as shown in the inset of Figure 1.
Gable Roofs
Laying out common rafters. To lay out the ridge cut and birdsmouth, I determine the rafter’s line length (LL). The LL equals the length from the ridge cut to the heel cut of the birdsmouth. This length is measured along the bottom edge of a rafter. The LL for a straight gable run is equal to the actual rafter run multiplied by the common LL ratio for a specific pitch. Most people are used to using a theoretical rafter run. To find the actual rafter run, subtract the thickness of the ridge from the span of the building, and divide by two (see Figure 2). The common LL ratio is, in trigonometric terms, the secant of the roof pitch angle. Rather than using rafter tables or running through the Pythagorean theorem, I use the LL ratio to figure all my roofs. Table 1 lists the common LL ratios for most pitches between 1 and 24.



Figure 2. To find the rafter run, subtract the thickness of the ridge from the span and divide by two (top). This is multiplied by the LL ratio to find the length of the rafter (LL). On the racks (lower), the ridge cut line is snapped on one end of the pile. The LL is measured from here to find the heel cut line.
Snap a line perpendicular to the rafters for the short point of the ridge cut near one end of the rafters as shown in Figure 2. Make sure you come in far enough from the end so that the long point of this cut will stay on the board. Measure the LL distance down the rafters at each end of this snapped line and snap another line between these points. This marks the heel cut of the birdsmouth. To make a crisp cut for exposed rafter beams, check diagonals across the pile from the seat-cut line to the ridge-cut line to be sure the cuts will be square.
Gang cutting commons. The birdsmouth can be cut with either a dado saw or a swing table saw (see “Tool Box,” JLC, 3/90). The dado saw makes the seat cut in one pass, whereas the swing table saw requires two. Use a board as a guide when cutting exposed birdsmouth cuts.
When the birdsmouth cut is finished, make a starter pass on the ridge cut line with a circular saw set at the proper roof pitch angle, as shown in Table 2. Return the saw to square and change the depth to 1-3/4 inches. On one side of the pile draw a plumb cut line from the bottom of the starter pass with an adjustable bevel square. (I use a Squangle—Mayes Tool Co., #2 Claremont Dr., Johnson City, TN 37601; 615/926-6171—which has both common and hip valley cuts already marked out on it and a long enough blade to reach across the width of most framing lumber.) Saw in a vertical fashion to finish the cut. The blade will leave a kerf line on the second board. Push the cut board back out of the way of the saw table. Follow the kerf to cut the next board, and so forth. Check the angle of the cuts every few rafters with the Squangle to make sure the cut is not wandering off. If the roof pitch is very steep you will have to lay each board flat and cut horizontally.
Lapping over an exposed ridge beam. For cathedral ceilings, I’m often called upon to run the rafters of a gable roof over an exposed ridge beam. In this situation, I find it easiest to offset the rafters and lap them on top of the ridge beam. I lay out the on-center spacing on the ridge and the plates with an X on the long side of the layout mark for one side of the roof. On the short side of the layout mark, I set the rafters for the other side of the roof. Since each side of the roof is sheathed separately it doesn’t matter if the rafters are offset.

Figure 3. For cathedral ceilings, the rafters sometimes lap over an exposed ridge beam. The rise is figured to the top of the ridge and the rafter length (LL) is figured between the two birdsmouths.

There is no plumb ridge cut here, but there is a birdsmouth for the ridge beam. The rise for the ridge beam and the LL for the rafter are both figured from the actual run. This run is found by taking the span, subtracting the thickness of the ridge beam and dividing by two (see Figure 3). The rise is figured from the top of the outside plates to the top of the ridge. (The rise can always be found by multiplying the actual run by the roof-rise ratio. The roof-rise ratio is, in trigonometric terms, the tangent of the roof pitch angle. Here too, I figure these numbers out for common pitches beforehand. I have calculated these ratios for most common pitches and they are included in Table 3.) To find the LL between the top and bottom heel cuts, multiply the run by the common LL ratio.
I usually cut the overlap on the ridge ends in the air to save time. Or, if this is hard to reach, you can lay out a pattern by scribing the cuts on a pair of rafters that have been tacked onto the ridge after the birdsmouths have been cut.
Hip Roofs
Hip ridge and commons. To figure the ridge length for a full hip roof, take the length of the building, subtract the width of the building and add the thickness of the ridge (see Figure 4). Hip roof commons are identical to gable roof commons; I put a common rafter at each end of the ridge, as shown. This helps steady the ridge when stacking the roof and provides a strong corner for the hip rafter to tie into.
Hip rafters. To figure the LL of the hip rafter, take the span, subtract the thickness of the ridge, and divide by two as shown in Figure 4. Multiply this distance by the hip/valley LL ratio in Table 1. The resulting LL is measured on the bottom of the board from the top double 45° cheek cut to the point of the V-notch at the birdsmouth. To find the cut lines for the top double 45° angle, measure downhill (towards the tail) half the thickness of the hip. Make sure this distance is measured square to the hip/valley LL plumb line. When drawing the plumb line, don’t forget to set the Squangle for the hip/valley plumb cut. I keep two Squangles painted separate colors for hip and common rafters so I won’t confuse them.

Figure 4. To find the ridge length for a full hip roof, subtract the span from the length of the house and add the thickness of the ridge (top). To find the hip run, subtract the ridge thickness from the span and divide by two (lower). This run is then multiplied by the hip LL ratio to find the LL of the hip rafter.
To determine the depth of the seat cut, measure the plumb distance above the birdsmouth on a common rafter. Then transfer this distance to the hip rafter along a plumb line that is drawn parallel to the LL mark but uphill (towards the ridge) at a distance of half the thickness of the hip. Remember to measure this half thickness square to the LL line. Cut the seat cut through this point perpendicular to the plumb line as shown in Figure 5.

Figure 5. The depth of the hip rafter’s birdsmouth can be found by measuring the length of the plumb line above the birdsmouth on a common rafter as shown. This distance, in this case 7 3/8 inches, is transferred to a plumb line on the hip rafter, which is drawn 3/4-inch (half the rafter thickness) uphill from the LL plumb line. If the heel cut doesn’t show, this line can be cut square at the LL plumb line. Or, you can cut at the uphill line and nip off the corner of the top plate.
For a 2x hip, square cut the heel cut of the hip birdsmouth at the LL mark if the siding will cover the heel cut of the birdsmouth. Or you can also clip the outside corner of the top plate. For exposed beam tails wider than 2x, the V-notch has to be chiseled or chainsawed. For wide hips you might have to back the hip, especially if the tails are exposed (see “Backing Hips and Valleys).

Backing Hips and Valleys
Wide hip and valley rafters can be ripped along the top edges so the two roof planes meet in the center of the rafters. The photo at right shows a valley rafter that has been “backed,” or beveled, along the top edge. The first step in finding the angle of this rip is to find the backing distance. This is the distance “X” shown in the drawing shown above. On a scrap that’s the same width as the hip or valley rafter, draw a line perpendicular to the hip/valley plumb line and make this cut. On the face of this cut, draw a 90° angle that bisects the centerline of the rafter as shown. (For polygonal roof ends that meet at an angle other than 90° or bastard intersections, use the angle at which the wall plates meet.) Extend the ends of this angle to the edges of the cut, and from the end points A and B, draw two lines parallel to the top edge of the rafter. The distance from top edge to this line will be the backing distance (shown as X). To find the angle to set your saw at for the rip, draw a small right triangle with one leg equal to the backing distance and the other leg equal to half the thickness of the rafter. I use a Squangle to find the backing angle (shown as Y). To back a valley, set the depth of the saw to the long side of the triangle and rip along the edge of the rafter towards the center. To back a hip, rip along the scribed line X.
Hip jacks. I lay out hip jacks on the racks using rafter material that is the same length as the commons. I mark the LL for the longest jack on one side of the hip and step down to the shortest jack. I mark the other half on the cut-offs. I pair the shortest jack of one set with the longest of the other set, and so forth. The step is the length each jack is successively shorter. It is found by multiplying the oncenter spacing of the commons by the common LL ratio. As shown in Figure 6 for 16 inches on-center, this is 16×1.118=177/8 inches. I usually take a lumber scrap and cut it to the length of this step to help mark off the jacks.
To start, determine the number of jacks needed for one side of the hip. To do this, take half the span (in inches), divide by the on-center spacing, and round up to the nearest whole number. For example, in Figures 4 and 6, this would be 120Ă·16=7.5, which rounds up to 8.

Figure 6. To figure the length of the longest hip jack (top), subtract the step distance and the LL of half the 45° thickness of the hip rafter from the length of a common rafter. The “step” is found by multiplying the on-center spacing of the commons by the common LL ratio. Note that the LL of the jack is measured here to the short point of the cheek cut, labeled A. On the racks (lower), one set of hip jacks is stepped off on common rafter stock. The other set is stepped off in the opposite direction on the offcuts. Notice that the keel marks, which indicate the direction of the cheek cut, are made in opposite directions.
Next, find the LL of the longest hip jack and step down the remaining jacks. The LL of a jack is measured from the heel cut line to the short point of the cheek cut along the bottom edge of the board. The longest jack is shorter than the common LL by one step measurement and the LL of half the thickness of the hip rafter measured on the diagonal.
Lay out the hip jacks starting at the tail. Measure up for the overhang, and snap a line for the birdsmouth. From the birdsmouth line, measure up the length of the longest hip jack you just found, and place a mark at A, as shown in Figure 6. Make a keel mark going in the direction of the cheek cut to remind you that this is the short-point measurement. From A, mark off successive steps on each board using the step pattern until you reach the birdsmouth line. This completes one set of jacks.
To lay out the other side, set up another tail and birdsmouth at the other end of the pile. Mark off another long jack on the other side of the pile, and step down to the new birdsmouth line as shown. You should end up with two sets of opposite cheek cuts. Make the marks for each set with a different colored keel so the two sets don’t get mixed up. I usually add an extra rafter to the pile and start the step off for the second set on this one, so the long points of the cheek cuts don’t run into each other.
Make the birdsmouth cuts on each end before making the cheek cuts in the middle of each board. And check as you cut each line to see that they are going in the right direction.
Valleys
The LL and the ridge cut of a valley rafter is identical to a hip rafter shown in Figure 4. The only difference between the two is that the V-notch in the birdsmouth is reversed. To reverse the cut, measure half the thickness of the valley rafter perpendicular to the LL plumb line towards the tail. Draw a second plumb line here. Then measure the plumb height of the common rafter above the birdsmouth and transfer this measurement to the LL plumb line on the valley rafter. Then draw a perpendicular line through this point to mark the seat cut. This automatically drops the valley to the right height. Again, if the heel cut will be covered by siding it can be cut square at the second plumb line.
Valley jacks. Valley jacks are “stepped off” similar to hip jacks. Here, however, you don’t cut a birdsmouth. Instead you lay out two parallel plumb cuts; the end that intersects the valley is a single cheek cut and the other end is a regular ridge cut.

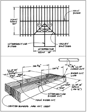
Figure 7. A valley intersection, shown here in plan (top), has four sets of jacks —two for each roof span. All four sets can be laid out on the racks (lower). The long points of one set from each span are stepped off first. Then the short points of the other sets are found using the LL of the cheek cut. Note the ridge cut and the cheek cuts go in the same direction.
There are four sets of jacks in a valley intersection—two sets for the span of the main roof and two sets for the span of the intersecting roof—as shown in Figure 7, previous page. I lay them all out and cut them at one time. The longest valley jacks on each side have the same LL as a common rafter for the same run. I start the layout by snapping a ridge-cut line, and then I measure down the LL of the common rafter for each roof span. Next, I “step off” the jacks to lay out sets A and D as shown. The step marks indicate the long points of the cheek cuts.
To mark the alternate sets B and C, begin by calculating the LL of a 45° cheek cut. This is the thickness of the jack multiplied by the common LL ratio. Measure this distance towards the ridge cut line on the shortest jack in sets A and D, and mark the short point of the cheek cut on the opposite edge of the board. The short point will be the long point of the longest jack on the alternate set for each span. Measure down the LL of the common rafter to find the ridge cut lines for these alternate sets. I make the ridge cuts first and then cut the cheek cuts for two jacks in one pass.
More Complex Roofs
These techniques can be used to lay out and cut more complicated roofs. If you can get used to thinking with the LL ratio, you can easily grasp the relationships between all the roof’s parts. I use the LL ratio in place of the Pythagorean theorem for figuring out any roof cut.