In my previous article on the Queen of Zero mechanicals, I wrote about the challenges of designing an optimal heating, cooling, and ventilation system for a tight, high-performance home. Engaging in all the hand-wringing that might be expected for this brand-new Queen Anne Victorian pursuing Zero Energy Ready Home certification, our team of mechanical experts diligenly designed and installed a technologically advanced HVAC system suited to its location in Maryland (climate zone 4A), a mixed climate with high humidity levels.
Now that the home is near completion and the system is operational, I can attest to an exceptional level of comfort (thus far) throughout all four levels of this 4,800-square-foot home. In September with outdoor temps near 80°F and humidity an average 74%, the Queen’s interior achieved a consistent 72° and 45% humidity, even in the finished attic space on the third floor. Most notably, the home stayed relatively comfortable during workdays when a constant stream of crew members entered and exited the property’s seven exterior doors.
Yet, achieving this level of performance has not been without lessons learned along the way. In this update on the Queen’s mechanical system, I will share final equipment selections, the challenges we experienced around system integrations, as well as some of the operational trade-offs of this complex network of mechanicals.
System Components
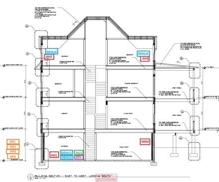
The Queen of Zero is heated and cooled via four high-performance cold-climate heat pumps manufactured by Mitsubishi Electric HVAC US (see photo above and illustration, below). With the exception of the basement music room, the house is conditioned via three ducted air handlers serving 1) first floor and partial basement; 2) second floor; and 3) third-floor finished attic. The basement music room, built with extensive sound-attenuation materials in the walls and ceiling, has a dedicated wall-mounted mini-split for heating and cooling—a ductless system designed to reduce sound-wave transmission to adjacent areas of the home.
At the jobsite, we have a saying, “This is not your grandmother’s Victorian,” and the final mechanical design is a perfect example. Despite the home’s conventional turn-of-the-century layout with its many segmented rooms and despite the central staircase that encourages a stack effect of warm air rising to the upper floors, the compartmentalization of the Queen’s HVAC into four distinct systems, each with its own thermostat and controls, ensures optimal comfort in all areas of the home. Gone are the days of sweltering attic spaces and chilly, damp basements.

Not your grandmother's HVAC: The 14 components monitoring and conditioning the Queen of Zero's indoor environment:AH1. Mitsubishi Electric SVZ-KP24NA air handler (indoor unit) – serving first floor and partial basement.AH2. Mitsubishi Electric SVZ-KP24NA air handler (indoor unit) – serving second floor.AH3. Mitsubishi Electric SVZ-KP18NA air handler (indoor unit) – serving second floor.MINI. Mitsubishi Electric MSZ-FS06NA-U1 wall-mounted ductless minisplit (indoor unit) – serving music room.DEHU2. AprilAire E080 Dehumidifier – Model 1830 – serving basement music room.DEHU3. AprilAire E080 Dehumidifier – Model 1830 – serving second floor.DEHU4. AprilAire E080 Dehumidifier – Model 1830 – serving third floor.DEHU1. AprilAire E100 Dehumidifier – Model 1850 – serving first floor and partial basement.HU1. AprilAire 800 Steam Humidifier – serving first floor and basement.ERV. AprilAire V22BEC Energy Recovery Ventilator with the 8120X exterior temperature and humidity sensor.HP1. Mitsubishi Electric SUZ-KA24NAHZ heat pump (outdoor unit) – serving first floor and partial basement.HP2. Mitsubishi Electric SUZ-KA24NAHZ heat pump (outdoor unit) – serving second floor.HP3. Mitsubishi Electric SUZ-KA18NAHZ heat pump (outdoor unit) – serving third floor.HP4. Mitsubishi Electric MUZ-FS06NA heat pump (outdoor unit) – serving basement music room.
As per ASHRAE 62.2 ventilation standards, the tight envelope of this high-performance home (less than 2.0 ACH50) requires a whole-house mechanical system to help circulate fresh air. We selected an AprilAire V22BEC Energy Recovery Ventilator (ERV), which transfers heat or cool from exhaust to intake (“energy recovery”) as it dumps fresh, filtered air into the supply side of the Mitsubishi Electric SVZ-KP24NA air handler. The V22BEC ERV also pairs with AprilAire’s 8120X Ventilation Controller, which monitors outdoor temperatures and will adjust its schedule to avoid bringing in fresh air during the hottest, most humid times of day.
To control humidity in the house, we added an AprilAire whole-home dehumidifier to each heating and cooling system. Importantly, these units can monitor indoor humidity levels and operate independently from heating and cooling demands. In other words, even in conditions where the thermostat is not calling for cooling, the dehumidifiers will run to remove excess humidity from the conditioned space. Similarly, a whole-home AprilAire 800 Steam Humidifier connected to the first-floor air handler will add humidity to the home during dry winter months—even when the thermostats are not calling for heat.
Meeting the ZERH Duct Leakage Standard
The U.S. Department of Energy Zero Energy Ready Home (ZERH) program follows Energy Star standards for maximum allowable duct leakage. For this project, duct blaster measurements could not exceed 4% air leakage (≤ 4 CFM25 per 100 square feet of conditioned space). Increasingly, local municipalities are also requiring duct tests to pass final inspections. The requirement makes a lot of sense—leaky ducts reduce thermal comfort, decrease the efficiency of mechanical systems, and increase the cost of utility bills.

Retrotec’s Noah Lawrence assisting with pre-drywall duct testing. His initial tests did not go as planned—results showed approximately 12% duct leakage, which is three times the allowable amount for Zero Ready Energy Home certification.
Such rigorous duct leakage testing is a significant shift in the work processes for many residential HVAC professionals, who are not accustomed to such scrutiny. I have yet to find a system that passes on the first manometer reading. Our initial readings at the Queen of Zero were approximately 12% duct leakage on all three ducted systems. We worked with the HVAC contractors over several days chasing theatrical-smoke trails to find and plug the leaks. One lesson learned: We should have tested the attic systems prior to spray-foam installation, as it was difficult to reach some leaks in the tight cavities behind the knee walls.
Because this process of sealing the ducts can be quite labor-intensive, it is important to include the standard for maximum allowable duct leakage in the HVAC subcontract so expectations are clear up front. Also, it helps to clarify who will be responsible for additional consulting fees if the green rater needs to make multiple trips for testing and diagnostics.

Chasing duct leaks behind the attic knee wall. The crew worked with the HVAC contractors over several days chasing theatrical-smoke trails to find and plug the leaks before they finally managed to get the duct leakage below the required 6% at pre-drywall.
Optimizing Humidity Control
High-performance building standards tighten and fortify the home’s exterior shell to keep the outdoor elements at bay, while maintaining more consistent, comfortable conditions within the home. In theory, this beefing up of the shell means that the mechanical systems will work less to heat and cool. However, in many climates, less conditioning and less natural airflow will necessitate whole-home humidity control mechanisms that operate independently from heating and cooling equipment.
Over the years, I have learned that a standard Energy Recovery Ventilator (ERV) does not provide adequate dehumidification of indoor air in our humid climate zone (for more info, see Allison Bailes’ article on this topic). In fact, ERVs can make indoor humidity levels rise on days when the outdoor environment is particularly moist. For this reason, we installed an ERV at Queen of Zero that includes an outdoor climate sensor that will shut down the equipment during undesirable conditions.
In addition, it is important to note that adding a dehumidifier in the basement, the most common location for homes in our area, would not be sufficient at the Queen. According to Doug Horgan, vice president of best practices at BOWA, “Humid air is lighter than dry air. So everything else being equal, if your house is closed, your upper levels will end up with more humidity.” In other words, a dehumidifier in the basement will do nothing to solve humidity problems on the upper floors of the home, which is why the Queen of Zero has a ducted, whole-home dehumidifier attached to each heating and cooling system.
Horgan also points out that dehumidifying equipment inherently adds heat to the treated air and, therefore, recommends that ducted units operate on the supply side of the air handler. At the Queen, the HVAC contractor, Ridgchi Appadoo, found that the warm air emitted from the dehumidifiers was causing the Mitsubishi Electric air handlers to operate less efficiently. The solution was to alter the settings on the AprilAire equipment to reduce its operation slightly—more specifically, the dehumidifier was programmed to operate only when the thermostat was not calling for cooling.

One of four AprilAire ducted dehumifidiers in the Queen of Zero home (DEHU4 serving the third floor as shown on the elevation above).
Equipment Integration
In total, there are 14 pieces of mechanical equipment regulating the Queen’s indoor air and operating in harmony to ensure optimal comfort for her occupants. To help manage the system from a user perspective, Appadoo opted for Ecobee Premium Pro WiFi-enabled thermostats, which allow the homeowner to control the complex system from one app on his cellphone.
However, because there are some limitations of the Ecobee thermostats pairing with Mitsubishi Electric air handlers, we needed to install an intermediary communication device. According to Appadoo, “Due to [the Mitsubishi Electric] proprietary communication protocol, we opted to use third-party equipment to ensure compatibility across all components. By incorporating the Airzone Aidoo Pro module, we were able to integrate the Mitsubishi system with Ecobee Premium Pro thermostats and AprilAire dehumidifiers. This setup allows all parts to work together seamlessly, providing optimal temperature and humidity control tailored to the home’s needs.”

The Airzone Aidoo Pro module functions as an intermediary communication device to integrate the Mitsubishi heat pumps with the Ecobee thermostats and AprilAire dehumidifiers.
Yet, there were several additional kinks that needed to be worked out to create a fully integrated and operational system. For example, the Mitsubishi Electric air handlers have only one port to plug in accessories such as an ERV or dehumidifier. On the basement air handler, we had three pieces of accessory equipment: an ERV, a dehumidifier, and a humidifier. Also, there was the issue of how to get the equipment to operate independently (for example, dehumidifying the air while not in cool mode).
Joshua Wharton, regional sales manager at Mitsubishi Electric HVAC US, who provided support for the Queen’s HVAC design, explains that these heat pumps are “fix it and forget it” equipment. The air handlers come preset to continuous fan mode. According to Wharton, continuous operation “is not always ideal with a third-party device which you don’t want running all the time. You don’t want the extra heat [from the dehumidifier]. So sometimes for things like a dehumidifier, you want it to have its own control and then use the airflow that’s already existing in the Mitsubishi system.”
Thus, the solution was to keep the Mitsubishi Electric equipment in continuous fan mode, which allows the AprilAire dehumidifier to share ductwork and take advantage of that airflow but operate independently via signal from the Airzone Aidoo controller, which synchronizes inputs from the Ecobee thermostats.
The integrated systems, explains Appadoo, function this way:
- Cooling and dehumidification: During a cooling cycle, the air handler lowers both temperature and humidity. If the target humidity level isn’t achieved by the end of the cooling cycle, the dehumidifier activates independently to bring humidity down to the desired level. This setup allows each air handler to effectively manage temperature and moisture.
- Basement humidifier: The basement includes a stand-alone humidifier that operates independently of the main system. Unlike the dehumidifiers, this humidifier activates only as needed, depending on humidity levels in the basement. Its separate operation ensures balanced comfort and prevents overly dry conditions specific to the basement area.
Tweaks to the System
Despite our concerted efforts to model the mechanical loads and duct design, the system has still required some adjustment. For example, we found that the system sometimes struggled to keep up with afternoon solar heat gain in the kitchen from a 2-by-4-foot skylight. Fortunately, the homeowner had the foresight to purchase a solar shade with his Velux FCM 2246 skylight, which solves this problem.
We anticipate adjustments to the system will continue through four seasons of occupancy. Joseph Hillenmeyer, AprilAire senior product manager, explains that many factors can impact how mechanicals function—from number of occupants, to opening windows, to cooking and showering habits. “As people live in the house, they probably will end up tweaking the equipment to an extent. But if you don’t include [the equipment] on the front end, then they’re calling someone to [install] it later, and it’s always going be more difficult to retrofit those things. At least now we know everything’s designed for the size of the house and the operation of the house, and the tweaks they want to make will all be possible.”
Another significant factor impacting performance will be the equipment maintenance. The Queen’s HVAC system has at least 11 air filters throughout the home that will require regular cleaning or changing, with schedules varying based on manufacturer specifications, filter type, and degree of use. The upside to all this housekeeping is incredibly pristine indoor air, as the filters are designed to remove a plethora of airborne toxins and pollutants such as dust, mold, and viruses.
Kudos to the Team
Of course, none of this innovative work would be possible without a highly competent and dedicated team of HVAC professionals willing to go above and beyond business-as-usual. Appadoo and his staff at Thermal Plus participate in advanced training and professional development opportunities as an integral part of their business model, which means they are uniquely prepared for increasingly stringent building energy codes on the horizon. Our team has also benefited from direct communication with the manufacturers, which offered valuable advice and technical assistance throughout the project. As the field of high-performance home building continues to evolve and gain market share, it will be pioneering efforts like the Queen of Zero that help pave the way for more sustainable, resilient, and durable homes in the future.
In This Series
Queen of Zero: A JLC Case Study Home
Paying Homage to a Bygone Era of American Homebuilding
Code-Built vs. Zero Energy Ready
Designing the HVAC System
High Performance From the Ground Up
Going to Scale With Panel Construction
A Modern Interpretation of the Victorian Porch
Rainscreen Details
Integrating Multiple Mechanicals
Powering the Queen