Residential

Basement Stairs Transplant

4 MIN READ

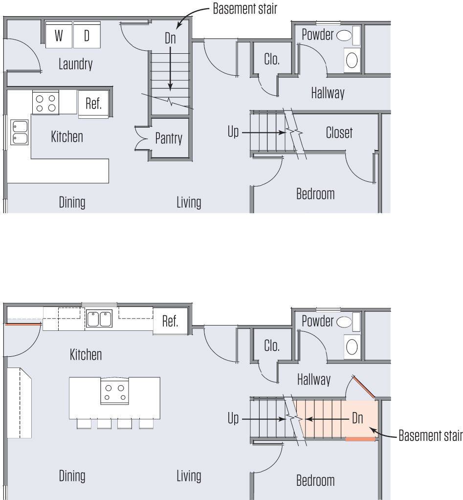
We renovate kitchens quite often, but I’ve rarely seen a renovation as dramatic—and yet as simple—as one that we completed recently. The key to the renovation was relocating the basement stairs. The house was originally built with the stairs to the basement and the stairs to the second floor in two completely different locations, most likely to provide a more direct route from a nearby breezeway door to the basement. The basement stairwell interrupted traffic flow to the front door and turned the kitchen, dining room, and living room into spaces that felt cramped. Stacking the two staircases allowed us to open up the entire space while creating a roomy kitchen.

In the original floor plan, a hallway ran behind the kitchen to access the basement stairs. A truss roof directly above that section of the house meant that the interior partitions were non-structural, so first we removed the walls that separated the hallway and kitchen. Then we tore out the chaseway walls, exposing the stair hole while leaving the stairs—the only convenient access to the basement—in place.

Before removing the old stairs, we prepared the space for the new ones. The original stairs stepped down to a landing and turned right 90° before continuing down to the basement slab. A closet occupied the space under the existing stairs to the second floor, so we were able to use the same configuration for the new basement stairs: a step down to a landing within the footprint of the closet, a 90° turn to the right, and then a straight run down to the basement floor.

The closet door opened into a room adjacent to the living room. That opening would eventually be walled off, and the access to the new basement stairs would be from a hallway on the opposite side of the closet. To confine the mess, we worked from the existing doorway and did not open up the new access until the stairs had been moved. Before we could cut the new opening in the closet floor, we had to relocate heating return ducts and frame the opening.

In the basement, we framed simple 2×4 walls for both sides of the new stairway. These walls were supposed to be continuations of the closet walls above. We positioned one wall close to the center beam, in plane with the wall above. But after measuring the width of the closet, we realized that the opening was too narrow for a code-compliant stair. To fix the problem, we positioned our other basement wall at the proper stair width, out of plane with the closet wall above. Then we stripped the drywall from that side of the closet, letting the studs overhang the wall and the framed opening below by an inch. After the stairs were installed we went back and ripped an inch from each of the studs with a reciprocating saw and a circular saw. This essentially created a 2×3 wall, but now the opening was wide enough for a code-compliant stair.

One of the new basement walls supported the ends of the floor joists that had to be cut for the new stair opening, so no special framing was required. We capped off the ends of the joists with 2x10s to finish framing the opening.

Basement slabs are notorious for being out of level, so next we measured the total rise of the original basement stairs and the total rise of the stairs at the new location. Fortunately they were almost exactly the same. That meant that the original stringers would work for the new stairs. Armed with that information, we built and installed the landing for the new stairs out of 2x8s. The original 2×10 treads had cupped and twisted over time, so we made new ones with ¾-inch-thick Advantech engineered floor sheathing ripped to the proper tread depth. We sheathed the landing with the same material.

The old stringers were in good shape, so we removed them carefully to be reused. Because we were reducing the tread thickness by ¾ inch, we needed to raise the height of the stringers by the same distance. The stringers were kiln-dried lumber, so we attached a strip of ¾-inch pressure-treated lumber to each stringer, raising them the proper distance and protecting them from contact with the concrete.

After hanging the stringers, we installed solid risers made from CDX plywood, then glued and nailed the new treads to the stringers. Where the old stairs had been removed, we filled in with joists as needed, then glued and nailed Advantech floor sheathing over the opening. To extend the existing strip flooring into the new kitchen space,we spliced in new flooring, which the flooring contractor did a masterful job of staining to blend old with new. In the end, the relatively simple task of relocating the basement stairs allowed us to create a larger and more functional kitchen, while integrating the kitchen, living room, and dining room with the main entry of the house in a wonderfully wide-open space.

Josh Piper is a project supervisor for Kurzhaus Designs (kurzhaus.com) in Harwich, Mass.

Register to download and view this article

Get your copy

About the Author

No recommended contents to display.

Upcoming Events