Commercial

A Successful Kitchen Redesign

3 MIN READ

Architectural design is a combination of art and science. Put more simply, it’s about how things look and how they work. Many view design as largely subjective, but when it’s done well it can be broken down into realistic, objective directives. These deal not only with aesthetics — form — but also with function, especially for kitchens.

In my experience, designing a well-working kitchen has much more to do with understanding specifically how the users will work in that space than with applying basic kitchen design principles like the “work triangle.” Kitchen design guidelines are just that: They indicate a certain way a problem can be solved. If a guideline goes against the user’s work habits, following it will result in poor design.

Recently I was hired to take a look at a home a general contractor was building for a couple who were first-time buyers. The new owners wished to make some changes to the partially completed kitchen, but they were a bit frustrated, not knowing exactly what they wanted done. Looking at the plans, I realized there were some design flaws that could be corrected. And after interviewing the couple about how they planned to use the kitchen, I realized that some design elements should be added.

It was obvious the owners planned to use the kitchen as one of the main areas of the house, not only for cooking daily meals but also for “cooking as entertaining” and experimenting with cooking as a hobby. While these uses are not particularly unique, they are specific enough to provide some design cues. For example, for both cooking daily meals and cooking as a hobby, proximity to food storage should be high on the list. And cooking as entertaining — having guests watch as the chef works — involves a certain showmanship, which might influence the choice of cabinets, appliances, and counters.

Also, the owners made it clear, without being specific, that they would like some innovative features in the design. Clearly they were hoping for a well-thought-out centerpiece kitchen.

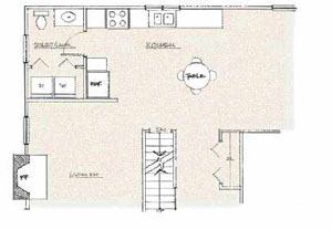
The Existing Plan

The owners had requested a laundry and a toilet somewhere near the kitchen area of the house. The builder had obviously had some difficulty finding a place to locate these rooms, so he’d decided to put them directly adjacent to and opening into the kitchen — an awkward arrangement. Since there should never be a direct visual relationship between the toilet room and areas used for food preparation, eating, or entertaining, I began by addressing this problem.

Option 1: Keep the Bathroom

With the budget foremost in mind, I presented the owners with my first option: keeping the toilet room but reconfiguring the space by using a stackable washer/dryer so that the door could be moved. I also added a work counter for the laundry with storage above and below.

Option 2: Add a Pantry

A second option, moving in the direction I believed they wanted to go, was to keep the door as built but change the room into a pantry, thus adding to the “working” qualities of the design. I was happy that the couple chose the pantry option; we relocated the toilet room to another part of the house.

Finished Showpiece

Finally, I nudged the design toward the “show kitchen” concept. Unfortunately, the builder’s package already included the cabinets, so I had to make selections within that product line. We did have a choice in appliances, though, and went with the Electrolux Icon Professional Series. These high-quality appliances have generated interest and conversation about the new kitchen. I also took advantage of the kitchen’s generous size by adding a peninsula with a cooktop and seating; here guests can hang out and watch the cook prepare meals and try out new recipes.

Thomas Lesko is a registered architect in Hingham, Mass. He teaches at the Wentworth Institute of Technology in Boston.

Register to download and view this article

Get your copy

About the Author

No recommended contents to display.

Upcoming Events