Looking for curb appeal? Like, really dramatic curb appeal? This new modern plan has it.
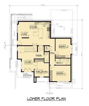
Ideal for a sloping lot, the layout showcases a lower level that opens outside. It also provides an extra kitchen and two bedrooms to create an independent living zone for extended family or perhaps even renters.

Modern house plan with walkout basement, lower level. See details at Houseplans.
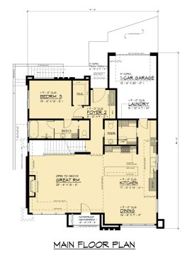
On the main level, the great room shows off a soaring ceiling and openness to the island kitchen and casual dining room. A guest suite adds extra versatility. Note the one-car garage on this level.

Modern house plan with walkout basement, main level. See details at Houseplans.
The upper level holds two bedroom suites (each with a private bathroom and walk-in closet), plus a meditation room that’s just off the loft.

Modern house plan with walkout basement, upper level. See details at Houseplans.