House Plan of the Week: Winter Storage

This move-up home design showcases plenty of closets.

1 MIN READ
Farmhouse plan with four bedrooms, front exterior. See more views at Houseplans.

Farmhouse plan with four bedrooms, front exterior. See more views at Houseplans.

This article was originally published on Builder Magazine

Homes face unique challenges in the winter, like coats piling up, boots stomping mud everywhere, and umbrellas dripping snow and rain.

Here’s a new home plan with abundant storage throughout the 3,288-square-foot layout.

On the exterior, stone adds rugged texture to the farmhouse styling. Paired porch columns draw the eye to the entry.

Inside, the main level presents an open layout with storage everywhere it’s needed. Stash pet supplies in the lockers on the way in from the garage. Groceries have a place in the walk-in pantry (with a window, so you can contemplate snacks by natural light). Even the office gets a walk-in closet.

The main suite sits on this level and shows off a spa-like bathroom that opens to a capacious, two-part closet. In turn, that storage opens directly to the laundry room.

Farmhouse plan with four bedrooms, main floor plan. See more views at Houseplans.

Farmhouse plan with four bedrooms, main floor plan. See more views at Houseplans.

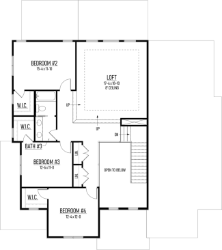
Upstairs, the large loft makes a great playroom or a library. Meanwhile, three bedrooms include walk-in closets. Extra linen storage in the hall is a nice touch.

Farmhouse plan with four bedrooms, upper floor plan. See more views at Houseplans.

Farmhouse plan with four bedrooms, upper floor plan. See more views at Houseplans.

Browse four-bedroom designs at Houseplans.

About the Author

Aurora Zeledon

Aurora Zeledon is Director, e-Commerce Marketing, Merchandising, and Content for Zonda House Plans, which includes house plan sites www.builderhouseplans.com and www.houseplans.com. With over ten years of experience in the pre-drawn plan industry, she sorts through thousands of designs every week to choose the most interesting, innovative, and marketable house plans to spotlight in Zonda's newsletters, social media, and publications.

No recommended contents to display.