Design: Revising a Raised Ranch

6 MIN READ

The raised ranch house is a split-level spinoff of the classic one-story ranch style that was created in California during the 1930s. Both went national in the ’50s and ’60s and became popular in the rapidly growing suburbs of the time. They feature open plans and horizontal massing. Other trademarks include low-pitched gable roofs, deep overhangs, picture windows, and a rectangular or ell-shaped footprint. Ranch-style houses were among the first modern houses, though they often retained some colonial overtones.

The raised ranch, in particular, was developed as an affordable upgrade from the conventional single-story ranch. Thanks to a partially submerged first level, it included a second level for little more than the expense of a one-story dwelling. A built-in garage and family room generally occupied the first level, with additional living spaces and bedrooms on the second. An entry level midway between the two primary floors provided access both up and down with short stair runs.

Today, the raised ranch house is found almost everywhere. While some of these houses are successful pure examples of the early modern style, many more are cheap knockoffs — inappropriately sited, poorly built, and lacking both detail and charm.

Raised Ranch Makeover Tips

If property values or budget restraints put extensive renovations out of reach, a number of simple modifications can be used to improve a raised ranch: • Make the entry evident from the front of the house and make it more welcoming with the addition of sidelights or flanking tall windows and possibly a dormer or transom window. • If the raised ranch in question features a pronounced second-story overhang, consider a small addition as deep as or deeper than the overhang to eliminate a top-heavy appearance. • Size window units so that larger windows are at the lower level and smaller windows are on the upper level, establishing a hierarchy of a more public base and a more private upper level. Group windows to achieve the daylight level you desire in balance with the overall elevation. • Remove plastic and inappropriately sized shutters. Upgrade to wood if possible. Shutters should be sized so that when closed, they cover the entire window sash. Shutters are a colonial-style holdover that may best be eliminated. • Downplay overhead garage doors by introducing bays or other detailed window groupings that suggest a more human scale while adding depth and interest to the garage elevation. • Reduce the apparent scale of standard paneled overhead doors by replacing them with overhead doors that are designed to appear more like paired swinging doors. Incorporate features like toplights and V-groove wood finish to upgrade the detail.

Style and Context

Transforming a tired raised ranch into a uniquely distinctive home that’s more appropriate to its context can be a formidable undertaking. I recently accepted such a challenge as part of a design team led by Geoffrey Koper, an architect in Yarmouth Port, Mass. Together we embarked on renovating a 30-year-old raised ranch located on a corner lot on the island of Martha’s Vineyard.

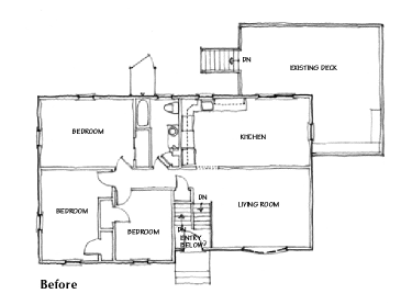
Floor Plans


The existing upper level of this 1970s raised ranch was too cramped for the current owners (top). Adding on to the south and east elevations provides space for an additional bathroom, enlarged living room, and new master suite, while leaving the north and west sides — and the existing kitchen — essentially unchanged (above).

The owners of the Vineyard house had a substantial wish list. They wanted to expand a number of existing spaces — the living room, master bedroom, master bathroom, and entry — while adding a mudroom and a second full bathroom upstairs. On the outside, the main objectives were to add some character to the elevation facing the main street and reconfigure the oddly located main entry.

In order to accommodate the enlarged and new rooms that the owners requested, we proposed additions to the south and east of the existing house. This meant that we’d need to rework most of the existing interior partitions in the original upper level. On the other hand, the changes wouldn’t interfere with the required zoning setbacks or the fully functional existing rear deck, and they would allow us to leave the less significant elevations largely undisturbed.

The proposed changes would allow us to fundamentally change the appearance of the house. We felt that the raised ranch style wasn’t really appropriate to the island. To better fit the house to its context, we decided to work in some of the cottage features of the Vineyard vernacular.

“Front” Elevation


The main entry of the original house actually looked out onto the side yard. A combination of high foundation walls, disproportionately large upper-level windows, and undersized windows beneath makes the house appear to be sinking into the ground. In the remodeled elevation, the expanded footprint of the house does away with the existing cross gable and its awkward overhang. A new continuous eaves line and steep-roofed extension of the gable end transform the original roof into a dormer.

A Cantilevered Bay and a New Entry

The existing entry sequence had some serious flaws. The “front door” on the east side of the house actually faced onto a side street. That east elevation was also marred by the heavy overhang of a cross gable that had been poorly disguised with gambrel rake attachments. As is typical of the raised ranch style, the door was approached by way of several exterior stairs. This meant that anyone using this entry was exposed to the weather while climbing the stairs. Except for a profile view of the stairs, the original entry was invisible from the real front elevation, which was dominated by a pair of garage doors.

To provide a more welcoming front elevation, we pulled the entry farther to the east of the existing house and oriented it to the main street. A new door with sidelights and a dormer above were incorporated to more clearly identify it. The lowered entry level allowed us to drop the eaves line as well, doing away with the unnecessary exterior stair. Our eastern expansion also meant we could eliminate the awkward overhang of the existing cross gable.

Street Elevation


The original front elevation presented a sorry sight to the main street — two sets of low-quality garage doors and a pair of slightly off-kilter windows. Adding a new entry to the east of the main mass, accented by a doghouse dormer, reorients the house to face the street. The extended cantilevered bay above the restyled garage doors is supported by a steel tube structure.

The steeper roof pitch over the south end addition visually transformed the flatter pitch of the original roof beyond into a pair of shed dormers. To enhance this new, more cottage-like appearance and draw attention away from the garage doors below, we added a cantilevered bay over the garage. accompanied by decorative brackets. These moves in combination improved both the function and the appearance of this now unique island home.

Katie Hutchison is an architect and owner of Earthlight Design in Salem, Mass.

Register to download and view this article

Get your copy

About the Author

No recommended contents to display.

Upcoming Events