Multigenerational house plans take many forms, which is appropriate considering they serve the needs of home buyers with many different types of living arrangements.
Sometimes these plans feature full separate living quarters that almost make the home feel like a duplex. Other times you’ll simply find a bedroom suite with a private bathroom.
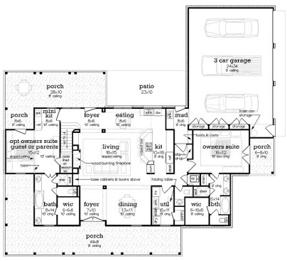
Here’s a new farmhouse with 2,410 square feet and broad appeal. Oh, and a very flexible suite that’s ideal for live-in relatives.
On the exterior, the wide wraparound porch creates tranquil outdoor living with plenty of room for rocking chairs or sofas.

Multigenerational house plan, main floor plan. See details at Houseplans.
The guest suite’s location on the main floor helps with accessibility, especially important for elderly relatives (or really anyone) who would like to avoid stairs. This flexible space showcases a mini kitchen, along with a spacious private bathroom that includes two sinks and a walk-in closet. Porch access makes it easy to get outside from here.
Homeowners get to enjoy similar convenience, with the primary suite also located on this floor. Note the private porch.

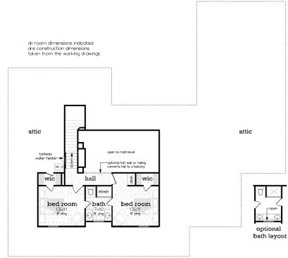
Multigenerational house plan, upper floor plan. See details at Houseplans.
Upstairs, children or additional guests share a bathroom that offers two different configurations.