House Plan of the Week: 1,747-Square-Foot Modern Farmhouse

See how this elegant design showcases large porches and thoughtful details.

1 MIN READ
Modern farmhouse plan with porches, front exterior. See details at Houseplans.com.

Modern farmhouse plan with porches, front exterior. See details at Houseplans.com.

This article was originally published on Builder Magazine

Tired of modern farmhouses? Well, house plan buyers aren’t—the style is still gaining in popularity. Here’s a new one with 1,747 square feet and some surprising amenities.

On the exterior, the usual white siding gets jazzed up with some warm accents and eye-catching garage doors (as suggested in this rendering). The front porch provides a spacious, relaxing place to spend a summer evening.

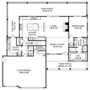
Modern farmhouse plan with porches, main level. See details at Houseplans.com.

Modern farmhouse plan with porches, main level. See details at Houseplans.com.

Take a look at the main floor plan. First, check out the porch in back. It wraps around the side of the home to connect with the laundry room, making it easier to drop off muddy shoes before heading into the house. The main suite also opens to the back porch. In the kitchen, seating at the bar creates a relaxed dining zone.

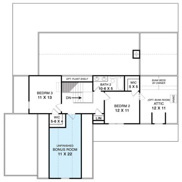
Modern farmhouse plan with porches, upper level. See details at Houseplans.com.

Modern farmhouse plan with porches, upper level. See details at Houseplans.com.

Upstairs, the secondary bedrooms showcase walk-in closets and share a hall bath that boasts two sinks. A bonus room and optional bunk room create opportunities for expansion.

See more modern farmhouse plans at Houseplans.com.

About the Author

Aurora Zeledon

Aurora Zeledon is Director, e-Commerce Marketing, Merchandising, and Content for Zonda House Plans, which includes house plan sites www.builderhouseplans.com and www.houseplans.com. With over ten years of experience in the pre-drawn plan industry, she sorts through thousands of designs every week to choose the most interesting, innovative, and marketable house plans to spotlight in Zonda's newsletters, social media, and publications.

No recommended contents to display.

Upcoming Events