Some barndominium plans can get quite elaborate. Here’s one that keeps it simple with 2,000 square feet, one story, and a rectangular footprint.
The exterior showcases vertical board and batten and a metal roof for a sleek farmhouse look. Note the large wraparound porch, which adds generous outdoor living room and takes attention away from the two-car garage.
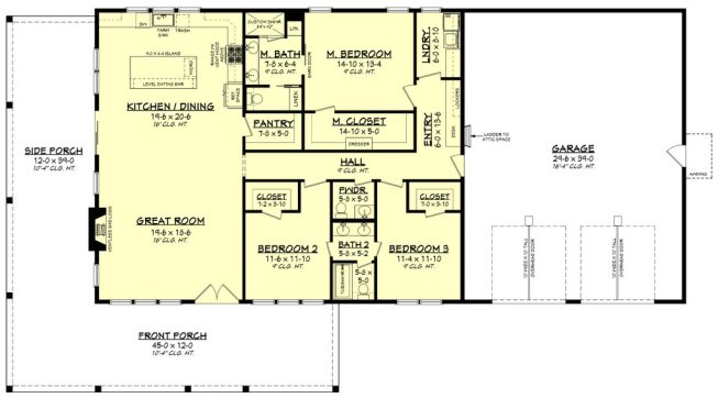
Inside, the floor plan is about as streamlined as it gets. The island kitchen flows effortlessly into the dining area and then the great room, with access to the side porch. Highlights of the sleeping zone include walk-in closets, a sleek modern bathroom for the primary suite, and two sinks in the shared bathroom for the secondary bedrooms.

Barndominium plan with 2,000 sq. ft., floor plan. See details at Houseplans.com.