House Plan of the Week: 2,457 Square Feet With a Front-Facing Garage

See how this graceful design sports a game room upstairs.

1 MIN READ
Mid-Size House Plan with Front-Facing Garage, Front Exterior. See Details at Houseplans.com.

Mid-Size House Plan with Front-Facing Garage, Front Exterior. See Details at Houseplans.com.

This article was originally published on Builder Magazine

Front-facing garages are practical for small lots, but they can quickly overtake the front elevation. Here’s an elegant midsize house plan with a front-facing garage that complements the curb appeal.

Separate doors for the two-car garage break it up visually, so it’s not just a big block of garage. Gables and a dormer draw the eye up.

The main floor holds the straightforward, very open layout. All three bedrooms line up against the left side of the home (with the primary suite enjoying a view of the backyard), while the living spaces flow into one another on the right side.

Mid-Size House Plan with Front-Facing Garage, Main Level. See Details at Houseplans.com.

Mid-Size House Plan with Front-Facing Garage, Main Level. See Details at Houseplans.com.

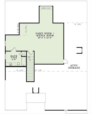
Upstairs, a large game room includes a full bathroom and provides a lot of versatility. A window seat adds a charming touch for reading.

Mid-Size House Plan with Front-Facing Garage, Upper Level. See Details at Houseplans.com.

Mid-Size House Plan with Front-Facing Garage, Upper Level. See Details at Houseplans.com.

See open floor plans at Houseplans.com.

About the Author

Aurora Zeledon

Aurora Zeledon is Director, e-Commerce Marketing, Merchandising, and Content for Zonda House Plans, which includes house plan sites www.builderhouseplans.com and www.houseplans.com. With over ten years of experience in the pre-drawn plan industry, she sorts through thousands of designs every week to choose the most interesting, innovative, and marketable house plans to spotlight in Zonda's newsletters, social media, and publications.

No recommended contents to display.

Upcoming Events