Commercial

House Plan of the Week: 2 Beds + 2 Baths Under 1,000 Square Feet

This simple home design keeps things affordable and flexible.

1 MIN READ
This article was originally published on Builder Magazine

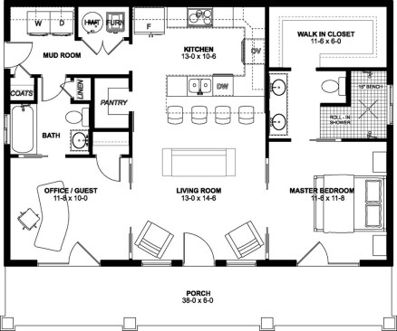
With its versatile second suite and simple open layout, this small house plan makes an appealing starter home or downsized retirement dwelling. See the floor plan and interior renderings at Houseplans.com.

The charming front elevation showcases a large porch that opens from several areas of the home to create indoor-outdoor flow.


The footprint of the home is straightforward and rectangular. In the main gathering areas, the living room opens to the kitchen, where a snack counter seats four for casual meals. On the right side of the home, the primary suite includes a roll-in shower and two sinks. On the opposite side, a guest suite can easily serve as a home office. The mudroom keeps things organized.


Explore small home designs at Houseplans.com.

About the Author

Aurora Zeledon

Aurora Zeledon is Director, e-Commerce Marketing, Merchandising, and Content for Zonda House Plans, which includes house plan sites www.builderhouseplans.com and www.houseplans.com. With over ten years of experience in the pre-drawn plan industry, she sorts through thousands of designs every week to choose the most interesting, innovative, and marketable house plans to spotlight in Zonda's newsletters, social media, and publications.

No recommended contents to display.

Upcoming Events