House Plan of the Week: 4 Beds, 1 Story, 2,507 Square Feet

This farmhouse design features a versatile layout that can appeal to many different buyers.

1 MIN READ
One-story farmhouse plan with four bedrooms, front exterior. See details at Houseplans.com.

One-story farmhouse plan with four bedrooms, front exterior. See details at Houseplans.com.

This article was originally published on Builder Magazine

If you’ve got the lot, a one-story plan with four bedrooms opens up all kinds of possibilities, whether for move-up buyers or upscale downsizers who want enough room for guests. This new plan with 2,507 square feet provides style and versatility. See more images and information at Houseplans.

The exterior shows off a pretty spacious porch (there’s another in back) and sleek board-and-batten.

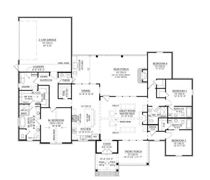
Inside, the open layout splits the bedrooms, with the main suite on one side and three secondary bedrooms on the other. In the middle, the vaulted great room flows into the island kitchen. Back to that primary suite for a second: Note how the walk-in closet opens into the laundry room, making washing day fuss-free.

Two of the three additional bedrooms feature their own bathrooms, granting extra privacy to grown children or guests.

One-story farmhouse plan with four bedrooms, main level. See details at Houseplans.com.

One-story farmhouse plan with four bedrooms, main level. See details at Houseplans.com.

See more one-story plans at Houseplans.com.

About the Author

Aurora Zeledon

Aurora Zeledon is Director, e-Commerce Marketing, Merchandising, and Content for Zonda House Plans, which includes house plan sites www.builderhouseplans.com and www.houseplans.com. With over ten years of experience in the pre-drawn plan industry, she sorts through thousands of designs every week to choose the most interesting, innovative, and marketable house plans to spotlight in Zonda's newsletters, social media, and publications.

No recommended contents to display.

Upcoming Events