House Plan of the Week: 5-Bedroom Barndominium

The rustic look is hot. Here's a new one with room for a large family.

1 MIN READ
Barndominium Plan with 5 Bedrooms, Front Exterior. See Details at Houseplans.com.

Barndominium Plan with 5 Bedrooms, Front Exterior. See Details at Houseplans.com.

This article was originally published on Builder Magazine

There’s a lot to like about barndominium-style plans. (Note that the term is often used loosely today to describe any design with a barn-like appearance, with most having conventional framing.) Here’s a new barndominium with five bedrooms and a simple, budget-friendly footprint.

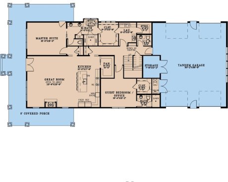
On the exterior, a wraparound porch adds farmhouse style and plenty of outdoor living for the warmer months. The four-car tandem garage is tucked away unobtrusively to the side.

Inside, the layout feels straightforward and contemporary, with the great room completely open to the island kitchen. A guest suite can host visitors or become a comfortable home office. Meanwhile, the main suite showcases a large walk-in closet that opens directly to the laundry room.

Barndominium Plan with 5 Bedrooms, Main Level. See Details at Houseplans.com.

mike.nelson

Barndominium Plan with 5 Bedrooms, Main Level. See Details at Houseplans.com.

Upstairs, each bedroom gets its own bathroom and walk-in closet. A large bonus room over the garage opens up possibilities for later expansion.

Barndominium Plan with 5 Bedrooms, Upper Level. See Details at Houseplans.com.

Barndominium Plan with 5 Bedrooms, Upper Level. See Details at Houseplans.com.

See more two-story barndominium plans at Houseplans.com.

About the Author

Aurora Zeledon

Aurora Zeledon is Director, e-Commerce Marketing, Merchandising, and Content for Zonda House Plans, which includes house plan sites www.builderhouseplans.com and www.houseplans.com. With over ten years of experience in the pre-drawn plan industry, she sorts through thousands of designs every week to choose the most interesting, innovative, and marketable house plans to spotlight in Zonda's newsletters, social media, and publications.

No recommended contents to display.

Upcoming Events