Commercial

House Plan of the Week: Another Barndominium with Curb Appeal

This brand-new home design provides tons of storage.

1 MIN READ
Barndominium House Plan 1064-231 Front Exterior from Houseplans.com

Barndominium House Plan 1064-231 Front Exterior from Houseplans.com

This article was originally published on Builder Magazine

Let’s review another barndominium-style plan that really embodies one of today’s hottest home looks. Rustic curb appeal evokes a barn while somehow also looking modern. That large garage can hold three cars, or perhaps a mix of vehicles and lawn equipment, tools, etc.

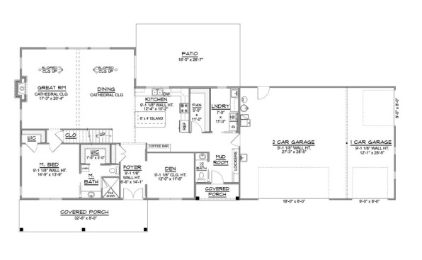
Inside the main home, everything is organized and tidy with tons of storage. Lockers on the way in from the garage can hold backpacks or pet gear. Meanwhile, a den near the front would make a great home office.

Easy to reach on this level, the main suite provides two walk-in closets and a streamlined bathroom.

Barndominium House Plan 1064-231 Main Floor Plan from Houseplans.com

Barndominium House Plan 1064-231 Main Floor Plan from Houseplans.com

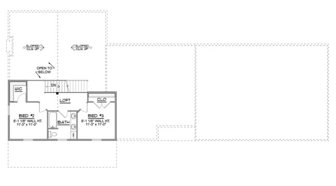
Upstairs, two secondary bedrooms share a hall bath that boasts two sinks.

Barndominium House Plan 1064-231 Upper Floor Plan from Houseplans.com

Barndominium House Plan 1064-231 Upper Floor Plan from Houseplans.com

See more barndominium plans at Houseplans.com

About the Author

Aurora Zeledon

Aurora Zeledon is Director, e-Commerce Marketing, Merchandising, and Content for Zonda House Plans, which includes house plan sites www.builderhouseplans.com and www.houseplans.com. With over ten years of experience in the pre-drawn plan industry, she sorts through thousands of designs every week to choose the most interesting, innovative, and marketable house plans to spotlight in Zonda's newsletters, social media, and publications.

No recommended contents to display.