House Plan of the Week: Barndominium With an RV Garage

See how this new design is ready for work and play.

1 MIN READ
Barndominium house plan with RV garage, front exterior. See details at Houseplans.com.

Barndominium house plan with RV garage, front exterior. See details at Houseplans.com.

This article was originally published on Builder Magazine

Another week, another new barndominium plan. This one is a great choice for clients who have a recreational vehicle to store.

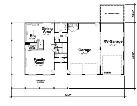
Take a look at that massive garage. The left part provides room for two cars, with more space behind for a workshop or storage. On the right, a tall bay can accommodate an RV.

Balancing out all that garage is an impressive wraparound porch.

Inside, the main living part of the home includes a pocket office that’s useful for occasional virtual meetings. The kitchen offers ample storage in the walk-in pantry. On the way to the garage, the drop zone keeps coats and boots corralled.

Barndominium house plan with RV garage, main level. See details at Houseplans.com.

Barndominium house plan with RV garage, main level. See details at Houseplans.com.

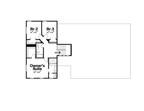
Upstairs, you’ll find three bedrooms, including the main suite with its streamlined private bathroom and walk-in closet. Two secondary bedrooms share the hall bath.

Barndominium house plan with RV garage, upper level. See details at Houseplans.com.

Barndominium house plan with RV garage, upper level. See details at Houseplans.com.

See more barndominium plans at Houseplans.com.

About the Author

Aurora Zeledon

Aurora Zeledon is Director, e-Commerce Marketing, Merchandising, and Content for Zonda House Plans, which includes house plan sites www.builderhouseplans.com and www.houseplans.com. With over ten years of experience in the pre-drawn plan industry, she sorts through thousands of designs every week to choose the most interesting, innovative, and marketable house plans to spotlight in Zonda's newsletters, social media, and publications.

No recommended contents to display.

Upcoming Events