Metal house plans are fairly rare in the stock house plan space, but here’s a new one with on-trend barndominium style. See more details at Houseplans.
The plan is designed for use as a pre-engineered metal building with Z8 metal core and steel columns with insulated metal sheeting on the exterior and two-by-four studs for the interior walls. Conventional two-by-six framing is also available.
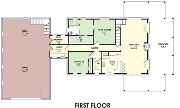
On the exterior, the gambrel roof over the garage creates the barn-like appearance. Balancing it out visually on the other side is a spacious porch that wraps all the way around to the back.
Inside, the ultra-spacious great room opens out to the porch via two sets of double doors. A unique wet room, which puts the freestanding tub within the walk-in shower, adds a luxe touch to the primary suite’s bathroom.

Barndominium house plan, main level. See more details at Houseplans.com.
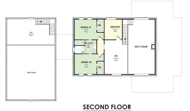
Upstairs, two bedrooms share a bathroom. An office and loft on the second floor add more versatility. Another loft in the garage creates more storage space.

Barndominium house plan, upper level. See more details at Houseplans.com.
See more designs with rustic barndominium style at Houseplans.