Here’s a rustic twist on the modern farmhouse look. This new three-bedroom house plan incorporates stone and trusses along with board and batten to create an exterior with a lot of texture and interest.
A wide front porch offers room for outdoor furniture. Meanwhile, the metal roof adds a sleek touch.
Inside, you’ll find a remarkable amount of storage. Lockers and a walk-in pantry make it easy to stash backpacks and put away groceries on the way in from the two-car garage (where you’ll find additional storage). The main suite’s spacious closet opens to the laundry room for convenience.
In the center of the home, the simple open layout flows out to the rear porch.

Craftsman farmhouse plan, main floor plan. See details at Houseplans.
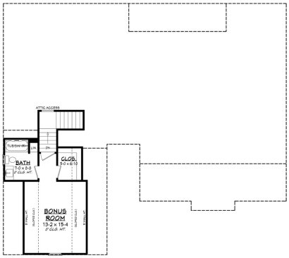
Upstairs, a bonus room presents a versatile space (and a full bathroom) to finish now or later.

Craftsman farmhouse plan, bonus room floor plan. See details at Houseplans.