Residential

House Plan of the Week: Elegant Craftsman From Visbeen Architects

This move-up home design brings rugged style to a sloping lot.

1 MIN READ
Craftsman house plan with basement, front exterior photo. Photo by Mike Buck, courtesy of Visbeen Architects. See more photos at Houseplans.

Craftsman house plan with basement, front exterior photo. Photo by Mike Buck, courtesy of Visbeen Architects. See more photos at Houseplans.

This article was originally published on Builder Magazine

Here’s a home design that’s ready for warmer weather and outdoor living. See lots of photos at Houseplans.

Designed by Visbeen Architects, this elegant Craftsman-style house plan shows off two levels of outdoor living. The main level steps out to a screened deck and covered patio, while the lower level opens to another patio.

Craftsman house plan with basement, rear exterior photo. Photo by Mike Buck, courtesy of Visbeen Architects. See more photos at Houseplans.

Craftsman house plan with basement, rear exterior photo. Photo by Mike Buck, courtesy of Visbeen Architects. See more photos at Houseplans.

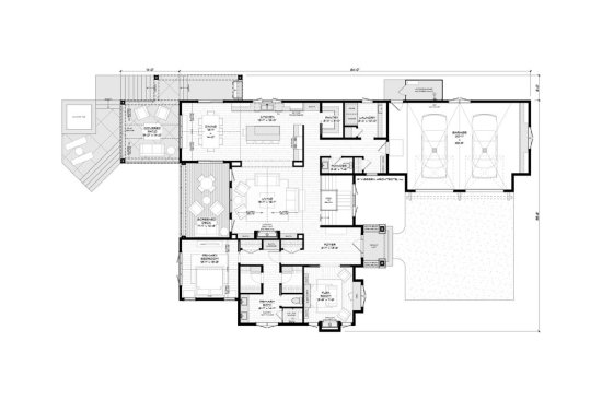
Here’s the main-level floor plan. Note the abundance of storage, especially on the way in from the two-car garage. The primary suite lives on this level and also boasts significant closet space. Near the foyer, the flex room can serve as a home office.

Craftsman house plan with basement, main level floor plan. See photos at Houseplans

Craftsman house plan with basement, main level floor plan. See photos at Houseplans

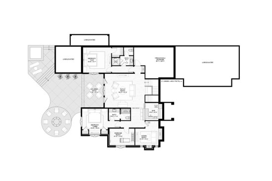
The lower level unveils a surprise: the “hidden room” near the bar. You’ll also find two more bedrooms, a family living area, and even an exercise room.

Craftsman house plan with basement, lower level floor plan. See photos at Houseplans.

Craftsman house plan with basement, lower level floor plan. See photos at Houseplans.

See the Visbeen Architects collection at Houseplans.

About the Author

Aurora Zeledon

Aurora Zeledon is Director, e-Commerce Marketing, Merchandising, and Content for Zonda House Plans, which includes house plan sites www.builderhouseplans.com and www.houseplans.com. With over ten years of experience in the pre-drawn plan industry, she sorts through thousands of designs every week to choose the most interesting, innovative, and marketable house plans to spotlight in Zonda's newsletters, social media, and publications.

No recommended contents to display.

Upcoming Events