House Plan of the Week: Festive Farmhouse Style With Storage

See how this home design features comfortable gathering spots and many practical details.

1 MIN READ
Farmhouse plan with lots of storage, front exterior. See details at Houseplans.com.

Farmhouse plan with lots of storage, front exterior. See details at Houseplans.com.

This article was originally published on Builder Magazine

What makes a house plan festive? It goes beyond decorations. This new farmhouse design includes the right elements for holiday hosting.

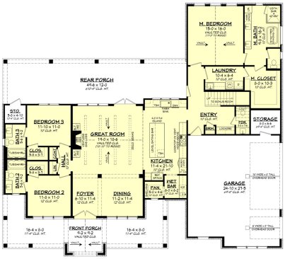
To start: The floor plan showcases an open layout with room for guests to circulate, along with a dining area that’s set apart but within view. Large porches in front and back give visitors somewhere to wander while waiting for dinner to be ready.

And don’t forget storage. This plan features a wet bar and a walk-in pantry in the kitchen (making it easy to prep drinks and appetizers), lockers near the garage (for keeping coats and boots organized and away from the foyer), a walk-in closet for each bedroom, and even extra storage zones.

Farmhouse plan with lots of storage, main level. See details at Houseplans.com.

Farmhouse plan with lots of storage, main level. See details at Houseplans.com.

See more farmhouse designs at Houseplans.com.

About the Author

Aurora Zeledon

Aurora Zeledon is Director, e-Commerce Marketing, Merchandising, and Content for Zonda House Plans, which includes house plan sites www.builderhouseplans.com and www.houseplans.com. With over ten years of experience in the pre-drawn plan industry, she sorts through thousands of designs every week to choose the most interesting, innovative, and marketable house plans to spotlight in Zonda's newsletters, social media, and publications.

No recommended contents to display.

Upcoming Events