With summer fast approaching, lakefront house plans feel right. Here’s a new design with a contemporary open layout.
On the exterior, large windows and a spacious porch capture the view nicely.
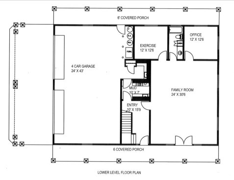
Inside, a generous four-car garage offers plenty of room for storing vehicles and equipment. Note the simple, rectangular footprint. This level also showcases flexibility with the family room, exercise space, and the office.

Simple lakefront house plan, ground level. See details at Houseplans.
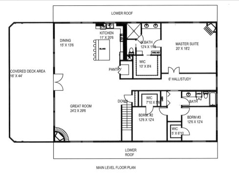
Upstairs, the main living areas flow outside to the porch. The kitchen island presents a relaxed place to entertain guests with room to seat five. Each of the three bedrooms boasts a walk-in closet.

Simple lakefront house plan, main level. See details at Houseplans.