House Plan of the Week: Meet the Shop House

See how this plan offers workshop space on the bottom and living space above.

1 MIN READ
Garage plan with workshop and living space, front exterior. See details at Houseplans.com.

Garage plan with workshop and living space, front exterior. See details at Houseplans.com.

This article was originally published on Builder Magazine

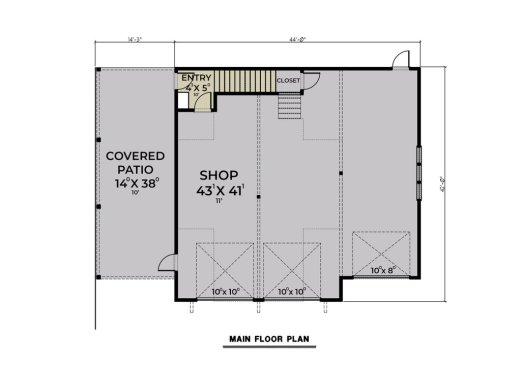
Workshop meets house with this plan, which offers work zones on the ground floor within a spacious garage (with space for tinkering with cars, equipment, etc.) and relaxing living space above.

On the exterior, modern farmhouse styling fits the current trend nicely. Note the sizable covered patio on the side, perfect for relaxing with a glass of lemonade after finishing a project.

Garage plan with workshop and living space, garage level. See details at Houseplans.com.

Garage plan with workshop and living space, garage level. See details at Houseplans.com.

Upstairs, the one-bedroom apartment creates a versatile living space for renters, adult children, or perhaps just working from home. Some people may even choose to build this as their primary dwelling. See a rendering of the interior.

Garage plan with workshop and living space, upper level. See details at Houseplans.com.

Garage plan with workshop and living space, upper level. See details at Houseplans.com.

See more house plans with workshop options at Houseplans.com.

About the Author

Aurora Zeledon

Aurora Zeledon is Director, e-Commerce Marketing, Merchandising, and Content for Zonda House Plans, which includes house plan sites www.builderhouseplans.com and www.houseplans.com. With over ten years of experience in the pre-drawn plan industry, she sorts through thousands of designs every week to choose the most interesting, innovative, and marketable house plans to spotlight in Zonda's newsletters, social media, and publications.

No recommended contents to display.

Upcoming Events