House Plan of the Week: Memorial Day Outdoor Living

This small modern home design showcases impressive indoor-outdoor living.

Small modern house plan, rear exterior. See details at Houseplans.

Small modern house plan, rear exterior. See details at Houseplans.

This article was originally published on Builder Magazine

What’s better than relaxing on the deck on a long holiday weekend? This bold house design encourages indoor-outdoor living. See interior images at Houseplans.

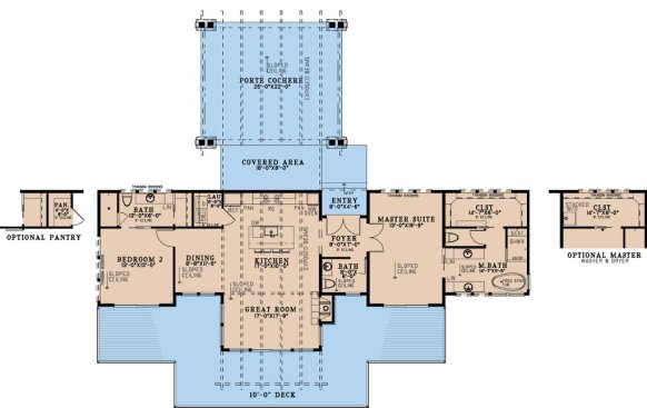
The back of the home showcases a large deck, which can be accessed from several places (the great room, the guest bedroom, and the luxurious primary suite). Soaring windows capture the view nicely.

Other notable features of the layout include the vaulted ceiling in the main living areas, a porte-cochere in front, and a spa-like bathroom in the primary suite.

Small modern house plan, floor plan. See details at Houseplans.

Small modern house plan, floor plan. See details at Houseplans.

See small modern designs at Houseplans.

About the Author

Aurora Zeledon

Aurora Zeledon is Director, e-Commerce Marketing, Merchandising, and Content for Zonda House Plans, which includes house plan sites www.builderhouseplans.com and www.houseplans.com. With over ten years of experience in the pre-drawn plan industry, she sorts through thousands of designs every week to choose the most interesting, innovative, and marketable house plans to spotlight in Zonda's newsletters, social media, and publications.

No recommended contents to display.

Upcoming Events