House Plan of the Week: Modern Farmhouse With Tons of Storage

This sleek home design showcases walk-in closets and bonus space.

1 MIN READ
Modern farmhouse plan with storage, front exterior. See details at Houseplans.

Modern farmhouse plan with storage, front exterior. See details at Houseplans.

This article was originally published on Builder Magazine

Is there such a thing as too much storage? If this modern farmhouse could talk, it would say no, that more is more when it comes to closet space.

The exterior displays modern farmhouse styling, including a wide front porch with a metal roof above it. Note how the garage is tucked around the side to the back.

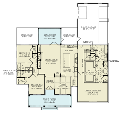
All of the main living spaces reside on one level. That includes the primary suite, which gives homeowners an absolutely huge walk-in closet, two vanities, and direct access to the laundry room. Each secondary bedroom also boasts a walk-in closet. In the middle of the home, the kitchen invites everyone to hang out at the island. A walk-in pantry stores groceries and can also serve the nearby dining room.

In back, a covered porch sits between two patios to create a variety of outdoor living areas.

Modern farmhouse plan with storage, main level floor plan. See details at Houseplans.

Modern farmhouse plan with storage, main level floor plan. See details at Houseplans.

Is more space needed? Take a look at the upper level, which can hold two bonus rooms and a bathroom. Attic space offers additional storage.

Modern farmhouse plan with storage, bonus space floor plan. See details at Houseplans.

Modern farmhouse plan with storage, bonus space floor plan. See details at Houseplans.

See more modern farmhouse plans at Houseplans.

About the Author

Aurora Zeledon

Aurora Zeledon is Director, e-Commerce Marketing, Merchandising, and Content for Zonda House Plans, which includes house plan sites www.builderhouseplans.com and www.houseplans.com. With over ten years of experience in the pre-drawn plan industry, she sorts through thousands of designs every week to choose the most interesting, innovative, and marketable house plans to spotlight in Zonda's newsletters, social media, and publications.

No recommended contents to display.

Upcoming Events