Start 2023 on a bold note with this new house plan. The multigenerational floor plan makes it a great choice for your clients who have live-in elderly parents or grown children.
The eye-catching exterior shows off an interesting roofline and large windows. Note how the shape of the entryway continues the modern influence as you step inside the home.
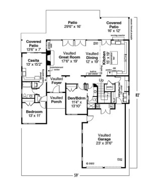
A flexible casita on the main level is what really sets this home design apart. Family members will appreciate the privacy of their living zone, which steps out to the back porch, and their full bathroom and bedroom nearby. Another bedroom suite near the front can also act as a home office.

Multigenerational house plan (main floor plan). Learn more at Houseplans.com
Upstairs, the primary suite gives homeowners a private balcony, a five-piece bathroom, and a walk-in closet. A secondary bedroom and hall bathroom also sit on this level and present another option for working from home.

Multigenerational house plan (second floor plan). Learn more at Houseplans.com
See more multifamily and multigenerational plans at Houseplans.com.