House Plan of the Week: One-Story Barndominium With 14-Foot Vaulted Ceiling

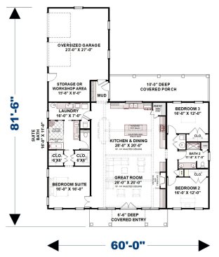
This design showcases a workshop in the large side-entry garage.

1 MIN READ
1 story barndominium plan front exterior. See more details at Houseplans.com.

1 story barndominium plan front exterior. See more details at Houseplans.com.

This article was originally published on Builder Magazine

The front exterior of some barndominium plans can feel garage-heavy, but not this one.

With the side-entry garage toward the back of the house, the focus stays on the charming front porch and sleek, barn-inspired roof line. Speaking of the garage, it’s got room for two cars and a workshop.

Inside the 2,460-square-foot home, the simple layout feels open and contemporary. See inside the home at Houseplans.com.

The vaulted ceiling soars to 14 feet for an airy vibe. Other special moments include the main suite’s luxurious bathroom with an open shower (see a view of it here) and the “silo-style” pantry.

1 story barndominium main floor plan. See more details at Houseplans.com.

1 story barndominium main floor plan. See more details at Houseplans.com.

Love the look? See more barndominiums at Houseplans.com.

About the Author

Aurora Zeledon

Aurora Zeledon is Director, e-Commerce Marketing, Merchandising, and Content for Zonda House Plans, which includes house plan sites www.builderhouseplans.com and www.houseplans.com. With over ten years of experience in the pre-drawn plan industry, she sorts through thousands of designs every week to choose the most interesting, innovative, and marketable house plans to spotlight in Zonda's newsletters, social media, and publications.

No recommended contents to display.

Upcoming Events