House Plan of the Week: Ready for the Holidays

This farmhouse home design features a grand room that's perfect for entertaining (or for opening gifts).

1 MIN READ
Farmhouse plan with wraparound porch, plan 54-575 at Houseplans.com

Farmhouse plan with wraparound porch, plan 54-575 at Houseplans.com

This article was originally published on Builder Magazine

Here’s something a bit unusual. This farmhouse plan (see interior images at Houseplans.com) offers a layout with formal spaces for entertaining.

On the exterior, farmhouse styling is still trendy. The porch wraps around one side of the home to create a welcoming vibe.

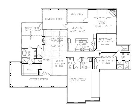
Inside, the one-story layout is less open than many other plans. That doesn’t mean it feels cramped, though. Just look at the family room and kitchen layout, which flows nicely from one space to another and provides access to the rear deck and covered porch.

The front of the home showcases a formal “grand room” and dining space. The decorative ceiling treatment draws eyes up, while a fireplace adds warm ambiance.

Farmhouse floor plan with wraparound porch, plan 54-575 at Houseplans.com

Farmhouse floor plan with wraparound porch, plan 54-575 at Houseplans.com

See more farmhouse designs at Houseplans.com.

About the Author

Aurora Zeledon

Aurora Zeledon is Director, e-Commerce Marketing, Merchandising, and Content for Zonda House Plans, which includes house plan sites www.builderhouseplans.com and www.houseplans.com. With over ten years of experience in the pre-drawn plan industry, she sorts through thousands of designs every week to choose the most interesting, innovative, and marketable house plans to spotlight in Zonda's newsletters, social media, and publications.

No recommended contents to display.