House Plan of the Week: Straightforward Barndominium

This new 2,212-square-foot design elevates a basic boxy shape.

1 MIN READ
Barndominium plan with simple footprint, exterior view. See details at Houseplans.com.

Barndominium plan with simple footprint, exterior view. See details at Houseplans.com.

This article was originally published on Builder Magazine

The barndominium look is definitely not for everyone. But there’s a lot of interest in this type of home design, which typically evokes rustic barn style while including a huge garage for storing cars, sports equipment, or even RVs. See more details at Houseplans.com.

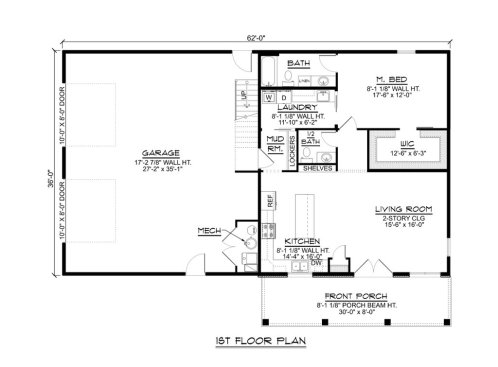
On the exterior of this 2,212-square-foot plan, the large garage is accessed from the side of the home. That keeps the focus on the front, where a porch adds curb appeal. Note the sleek metal roof and vertical siding.

The main level keeps things simple and open. Practical details abound, like the lockers found on the way in from the garage. The main suite resides on this level and gives homeowners a private bathroom and a large walk-in closet.

Barndominium plan with simple footprint, main level. See details at Houseplans.com.

Barndominium plan with simple footprint, main level. See details at Houseplans.com.

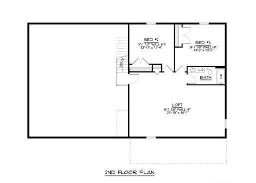
Upstairs, the large loft can serve as a work-from-home zone or playroom. Two secondary bedrooms easily accommodate family or friends.

Barndominium plan with simple footprint, upper level. See details at Houseplans.com.

Barndominium plan with simple footprint, upper level. See details at Houseplans.com.

See more barndominium plans at Houseplans.com.

About the Author

Aurora Zeledon

Aurora Zeledon is Director, e-Commerce Marketing, Merchandising, and Content for Zonda House Plans, which includes house plan sites www.builderhouseplans.com and www.houseplans.com. With over ten years of experience in the pre-drawn plan industry, she sorts through thousands of designs every week to choose the most interesting, innovative, and marketable house plans to spotlight in Zonda's newsletters, social media, and publications.

No recommended contents to display.