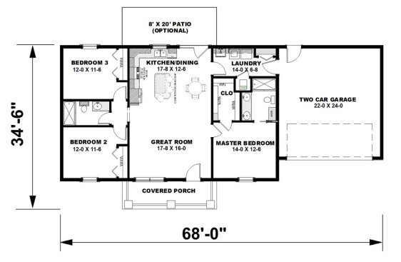
Here’s an elegant way to present 1,311 square feet of living space, plus a spacious garage. This starter home design stands out with plenty of porch space.
On the exterior, a metal roof and board-and-batten siding create farmhouse style. The large front porch visually balances the two-car garage and presents a generous place for autumnal decor.
Inside, the open layout flows from the great room into the kitchen. Here, an island offers seating on two sides (a nice touch) and a door out to the optional back patio.
On the right side of the home, the primary suite includes a large walk-in closet and a private bathroom with double sinks. Two more bedrooms share a hall bath on the opposite side of the layout.

Starter ranch home design with porch, floor plan. See details at Houseplans.