House Plan of the Week: Ultimate Summer Living

Check out this new home design that showcases impressive porches and decks.

1 MIN READ
Lakefront house plan, rear exterior. See details at Houseplans.

Lakefront house plan, rear exterior. See details at Houseplans.

This article was originally published on Builder Magazine

A good lakefront house plan makes outdoor living the priority. Here’s a new one that creates abundant spaces for enjoying being outside. See more images at Houseplans.

The back of the home showcases the view with a spacious porch that segues to an uncovered deck on either side on the main level and a patio downstairs.

Lakefront house plan, front exterior. See details at Houseplans.

Lakefront house plan, front exterior. See details at Houseplans.

Here’s a look at the front. Note the wraparound porch that, like the back, offers a mix of covered and uncovered spaces for relaxing. Rugged trusses add rustic flair.

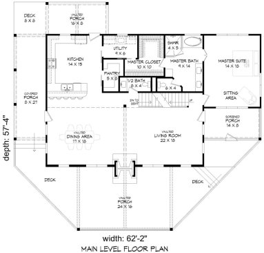
Lakefront house plan, main level. See details at Houseplans.

Lakefront house plan, main level. See details at Houseplans.

On the main level, the layout flows from the living room to the open dining area and then into the kitchen. A peninsula here seats five for relaxed meals. On the opposite side of the home, the primary suite treats homeowners to a five-piece bathroom and a walk-in closet that opens directly into the laundry room (convenient!).

Lakefront house plan, upper level. See details at Houseplans.

Lakefront house plan, upper level. See details at Houseplans.

Upstairs, secondary bedrooms offer spacious accommodation to guests or family members. A loft in the middle could become a peaceful reading area or a spot for games.

Lakefront house plan, lower level. See details at Houseplans.

Lakefront house plan, lower level. See details at Houseplans.

The lower level holds quite a bit of storage, along with parking and even a safe room.

See lakefront home plans at Houseplans.

About the Author

Aurora Zeledon

Aurora Zeledon is Director, e-Commerce Marketing, Merchandising, and Content for Zonda House Plans, which includes house plan sites www.builderhouseplans.com and www.houseplans.com. With over ten years of experience in the pre-drawn plan industry, she sorts through thousands of designs every week to choose the most interesting, innovative, and marketable house plans to spotlight in Zonda's newsletters, social media, and publications.

No recommended contents to display.

Upcoming Events