Building second homes in a beautiful locale? Here’s a log cabin design with a traditional look yet modern feel.
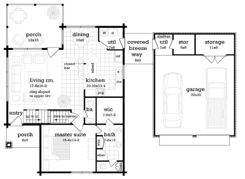
On the exterior, rugged logs provide a classic cabin appearance. A breezeway connects the home to the two-car garage.
Once inside, however, the open layout feels totally contemporary. Ever stayed in a cabin where everyone shared a single bathroom? Not here. The main bedroom showcases a modern bathroom with two sinks, a shower, and storage. Meanwhile, a powder bath on this level serves visitors (with a full bathroom for the bedrooms upstairs).

Log Cabin Plan Main Floor Plan. See Details at Houseplans.com.
Speaking of upstairs, this plan presents options for the layout. Choose to wall off the larger bedroom, or keep it open for a traditional loft. Bookshelves line the way to the other bedroom.

Log Cabin Plan Upper Floor Plan. See Details at Houseplans.com.
Want to see the basement floor plan? Check it out here. Or explore more cabin plans at Houseplans.com.